Produkty
KLv 2/1
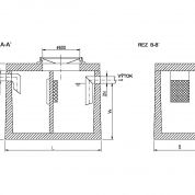
| Jmenovitý průtok (výkon) Q | 2 l/s |
| Odvodňovaná plocha | 140 m2 |
| DN | 125 mm |
| Počet nádrží | 1 |
| Objem kalojemu | 0,5 m3 |
| Vnější délka L | 1540 mm |
| Vnější šířka Š | 840 mm |
| Výška V | 1100 mm |
| Tloušťka stropní desky** B | 120 mm |
| Výška osazení nátokové roury od dna Vn | 925 mm |
| Výška osazení výtokové roury od dna Vv | 885 mm |
| Váha nejtěžšího kusu | 0,9 t |
| Výstupná hodnota vyčistenej vody z ORL [mg] | 1 až 5 mg/l NEL |
Normy:Všechny odlučovače ropných látek jsou konstruované jako odlučovače třídy I dle ČSN EN 858-1 a ČSN 858-2. Výstupní hodnoty ropných látek ve vyčištěné vodě měřil "Výskumný ústav vodného hospodárstva v Bratislave". Stupeň účinnosti je vyšší než 99% nebo výstupní hodnoty jsou nižšší než 1mg/l NEL při kontaminaci vody 200mg/l NEL (nebo nižšší než 5 mg/l NEL při kontaminaci vody 4250mg/l NEL. Zařazením dočišťovacího odlučovače se dosáhne vyšší stupeň čištění s výstupnímy hodnotami pod 0,1 mg/l NEL. Použití:- úprava průmyslových odpadních vod: autoumývárny, čerpacií stanice pohonných hmot Technický popis:Základní konstrukce ORL je vyrobena z železobetonové nádrže, nebo z více nádrží, obdélníkového nebo kruhového půdorysu. Nádrže sa vyrábí jako prefabrikáty z betonu třídy C 35/45 v smysle ČSN EN 206-1. Jednotlivé nádrže se skládají ze samotné nádrže (vany), delících stěn (příček) a zákrytové stropné desky. Přímo při výrobě nádrže se v místě průchodu nátokového a výtokového potrubí zabudují šachtové pouzdra s olejuvzdorným těsnícím kroužkem požadovaného DN. Vnitřní povrch nádrže je ošetrený trojsložkovým polyuretanovým nátěrem (pouze na objednávku) aplikovaným ve dvou vrstvách. Nátěr snižuje přilnavost ropné látky na povrchu stěn ORL a tím ulehčuje jeho čištění. Všechny technologické zařízení uvnitř odlučovače je z nerezevového plechu a z plastu. Jednotlivé komory odlučovače jsou prístupné pro údržbu a kontrolu přes kruhové nebo elipsovité vstupní otvory nacházející se v zákrytových stropních deskách. Při osazení odlučovače do větších hloubek se vstupní šachty budují z kanalizačních skruží. Vstupní šachta je uzavřená litinovým poklopom průměru 600 mm, třídy D 400 s označením LAPAČ. Jednotlivé části odlučovacího zařízení:Kalová nádrž (kalojem)Podle typu ORL může být integrovaná do odlučovače nebo sériově zařazená před odlučovač. Její hlavní funkcí je zachytávání pevných látek např. kalu, písku, otěru z pneumatík vozidel, listí a podobně. Na principu využití rozdílných objemových hmotností kapalin dochází už v kalojeme k odloučení lehkých minerálních kapalin od pevných částíc. Koalescenční odlučovačOdlučuje jemné volné ropné látky. Z kalojemu přetéká voda do odlučovacího prostoru, kde je umístěn koalescenční filtr. V pórech filtrační hmoty dochází ke shlukování nejjemnějších olejových častíc a k zachytávání jemných kalových nečistot. Olejové kapky vyplavou na hladinu, kde časem vytvoří olejovou vrstvu. Samočinný bezpečnostní plovákový uzávěr je umístěn uvnitři koalescenčního filtru. Plovákový uzávěr je ovládán nahromaděnou ropnou látkou a zabraňuje proniknutí už odloučené ropné látky do kanalizačního systému. Sorpční odlučovačV případě, že príslušný obvodní úřad životního prostředí, nebo správce toku vyžaduje vyšší účinnost odlučovače, se do ORL instaluje sorpční dočisťovací odlučovač, jehož výstupní hodnoty jsou nižší než 0,5 – 0,1 mg/l NEL. |
Doplňkové příslušenství:- šachta na odběr vzorků Umístění:Odlučovací zařízení se umísťují na odvodňovací systémy, kde je potřebné odloučit lehké kapaliny z vody a zadržet je v odlučovači. Nesmí být umístěné na odvodňovacích a kanalizačních systémech obsahujících splaškové vody, vody z území bez přítomnosti ropných látek např. střechy a travnaté plochy. Při projektování umístění odlučovače je třeba brat v úvahu požadavky na údržbu odlučovače: přístup cisternového vozidla, krátkodobé vyhrazení manipulační Montáž:Odlučovač se montuje za pomoci autojeřábu príslušné nosnosti, na dopředu připravený vodorovný podkladní beton s pískovým lůžkem dle návodu na uložení. Výšku pískového lůžka, podkladního betonu, štěrkového násypu uvádíme ve výkresech v cm pouze všeobecně. Pro každé osazení nádrže je nutní zjistit aktuální základové poměry stavby. Na základě těchto skutečností je potřeba statikem nechat navrhnout založení nádrže pro každý objekt individuálně. Servis a údržba:Pro zajištění dlouhodobé funkčnosti zařízení je potřebné a i předepsané v určitých časových intervalech vykonat servisní práce odborným personálem. Záruční doba:Záruční doba je 24 měsíců.
|
| Typ ORL | Jmenovitý průtok (výkon) Q [l/s] |
Odvodňovaná plocha [m2] |
Objem kalojemu [m3] |
Rozměry LxŠxV [mm] |
Váha nejtěžšího kusu [t] |
Výstupná hodnota vyčistenej vody z ORL [mg] |
|---|---|---|---|---|---|---|
| KLv 2/1 (vpust) | 2 | 140 | 0,5 | 0,9 | 1 až 5 mg/l NEL |
Obchodní manažeři
Žaneta Březinová
gsm 00420 734 621 187
e-mail klartec2@klartec.cz





